Автомобильные краны: полный обзор видов, технических параметров и сфер применения

В этой статье мы подробно разберём, какие бывают автокраны, на что обратить внимание при выборе и где эта техника незаменима.
Краны, смонтированные на автомобильное шасси, — одни из самых востребованных машин в сегменте подъёмной спецтехники. Их популярность объясняется просто: высокая мобильность, способность быстро перемещаться по обычным дорогам (до 80 км/ч) и отличная грузоподъёмность при относительно компактных размерах.

Из этого материала вы узнаете:

  • Где применяются автокраны
  • Из каких узлов они состоят
  • Ключевые технические характеристики
  • Классификация автокранов
  • Как подобрать идеальную модель под свои задачи

Области применения автокранов

Автомобильный стреловой самоходный кран относится к классу мобильной техники для строительных и погрузочно-разгрузочных работ. Основные функции: подъём, опускание и горизонтальное перемещение грузов в пределах рабочей зоны.

Практически ни одна стройка — от частного дома до крупного промышленного объекта — не обходится без колёсного крана. По сравнению с башенными кранами, автокраны проигрывают в высоте подъёма, но выигрывают в скорости передислокации. Их можно быстро перебросить с одного участка на другой, что критично при больших территориях.

Где ещё используют автокраны:

  • Погрузка/разгрузка на складах и в логистических центрах
  • Аварийно-спасательные работы (подъём упавших конструкций, извлечение транспорта)
  • Монтаж оборудования в промышленности
  • Сельское хозяйство (установка ферм, силосных башен)
  • Коммунальное хозяйство (обслуживание ЛЭП, вывоз крупногабаритного мусора)

Назначение и грузоподъемность

Краны могут использоваться в строительстве, промышленности, портовом хозяйстве, при монтаже оборудования. Грузоподъемность варьируется от долей тонны (мини-краны) до 1600 тонн и более (козловые краны).


Конструкция: из чего состоит автокран

Любой автомобильный кран включает две основные части:

  • Колёсное шасси — может быть стандартным грузовым автомобилем (2, 3 или 4 оси) либо специально разработанным шасси автомобильного типа.
  • Крановое оборудование — устанавливается на шасси и обеспечивает подъёмные операции.

Состав кранового оборудования:

Перемещаются по рельсовому пути или специальному бетонному основанию. Грузоподъемность может достигать 1600 тонн. В качестве подъемного механизма используется таль или лебедка, установленная на тележке. Тележка приводится в движение гибким тяговым канатом или собственными приводными колесами.

Стреловые краны

Компонент
Назначение
Поворотная платформа
Обеспечивает вращение стрелы на 360°
Стрела (телескопическая или решётчатая)
Основной подъёмный элемент
Привод (двигатель, гидросистема, трансмиссия)
Передаёт энергию механизмам
Кабина или пост управления
Для оператора
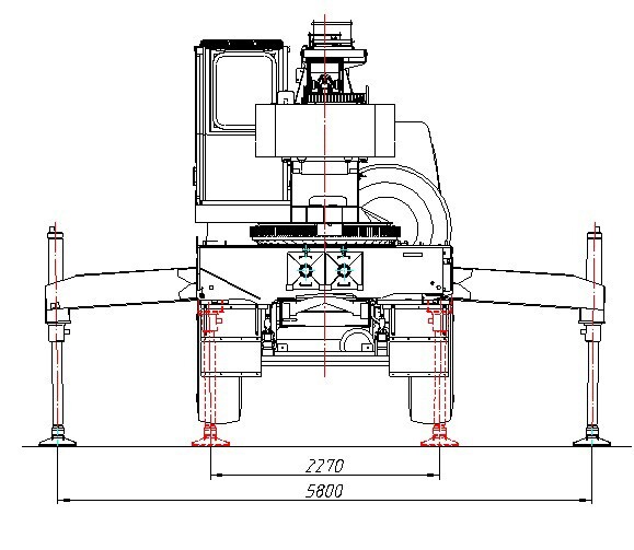
Выносные опоры (аутригеры)
Стабилизируют кран при работе
Грузозахватный механизм (крюк, магнит, грейфер)
Непосредственно для груза
Подвеска и гидроцилиндры
Ключевой элемент — стрела, состоящая из нескольких выдвижных секций. По ней движется тележка с грузозахватом. Угол наклона меняется с помощью подвески и гидравлики.

Технические характеристики автокранов

Чтобы правильно выбрать машину, нужно понимать четыре главных параметра.
Характеристика
Что означает
Типичные значения
Грузоподъёмность
Рычажная система зажимает груз силой трения
Круглые и профильные материалы
Вылет стрелы
Поддевают груз на поддоне
От 2–3 м до десятков метров
Высота подъёма
Самозатягивающийся эксцентрик
От 5–10 м до 100+ м (с гуськом)
Скорость передвижения
Транспортная скорость по дорогам
60–80 км/ч (обычно)
Важно: грузоподъёмность зависит от вылета стрелы. Чем дальше от кабины висит груз, тем меньше максимальный вес. Это отражено в грузовысотных таблицах для каждой модели.

В России производство и эксплуатация автокранов регулируются ГОСТами: 22827-85, 33167-2014, 27555-87 и другими.

Классификация автокранов

Автокраны делят по нескольким признакам. Рассмотрим основные.

По типу привода

Тип привода
Как работает
Плюсы
Минусы
Механический
Энергия от ДВС через трансмиссию
Дешевые запчасти, простой ремонт
Морально устарел, малая мощность
Гидравлический
Гидроцилиндры и гидромоторы от насоса
Высокое тяговое усилие, плавность
Требует частой замены масла и фильтров
Электрический
Электродвигатели от генератора на ДВС
Простое управление, защита от ошибок
Зависимость от исправности генератора
Комбинированный
Смешанный тип (например, гидроцилиндр + электромотор)
Гибкость в проектировании
Сейчас доминируют гидравлические автокраны — они надёжны, удобны в управлении и способны работать с большими весами.

По грузоподъёмности (согласно российским нормативам)

Группа
Класс
Грузоподъёмность
Малый
1
4 т
Малый
2
6,3 т
Малый
3
10 т
Средний
4
16 т
Средний
5
25 т
Средний
6
40 т
Средний
7
63 т
Большой
8
100 т
Большой
9
более 100 т
Для подавляющего большинства задач достаточно кранов 16–40 тонн.

По типу шасси

  • До 50 тонн — на стандартных шасси грузовых автомобилей:
Отечественные: КАМАЗ, МАЗ, КрАЗ.
Импортные: Mercedes, MAN, Scania, DAF, Ford.
Колёсные формулы: 4×4, 6×6, 6×4, 8×4.

  • Свыше 50 тонн — на специальных многомоторных шасси (6–9 осей).
Формулы: 10×8, 12×8, 12×12, 16×10.
Такая техника дороже, но обеспечивает устойчивость и проходимость при огромных весах.

По типу стрелового оборудования

Тип стрелы
Особенности
Телескопическая
Самый распространённый тип. Секции выдвигаются гидроцилиндрами и канатами. Длина меняется оперативно.
Решётчатая
Более лёгкая на единицу длины, используется на сверхтяжёлых кранах. Сборка секций вручную дольше.
Башенная
Часто к основной стреле добавляют гусёк — дополнительную секцию со своим крюком. Это помогает, когда подъезд к объекту затруднён.

По типу кабины

  • Стационарная — жёстко закреплена на платформе, не вращается.
  • Поворотная — может поворачиваться на 180°, улучшая обзор. Современные краны чаще имеют поворотную кабину

Как правильно выбрать автокран: пошаговое руководство

На рынке представлены модели от отечественных производителей («Галичанин», «Ивановец», «Клинцы») и зарубежных брендов (SANY, Liebherr, Terex-Demag, Komatsu, Zoomlion). Чтобы не ошибиться, ответьте на три вопроса.Вопрос

Вопрос 1: С какими грузами предстоит работать?

  • Вес — определите максимальный вес одного подъёма. Берите модель с грузоподъёмностью на 20–30% выше, чем самый тяжёлый груз.

Ошибка: недостаточная грузоподъёмность → авария, избыточная → переплата.

  • Габариты — для длинномеров или негабаритных предметов потребуются специальные захваты (траверсы, магниты, вакуумные присоски). Убедитесь, что кран оснащён нужным типом крюка или может быть дооснащён.

Вопрос 2: На какую высоту и на какое расстояние нужно поднимать груз?

Вылет стрелы и высота подъёма взаимосвязаны. Чем выше, тем обычно меньше допустимый вылет. Изучите грузовысотную характеристику выбранной модели. Если требуется доставать до удалённых точек (например, через препятствие), возможно, понадобится гусек

Вопрос 3: Где находится рабочая площадка?

  • Подъездные пути — выдержит ли дорога вес автокрана (до 20–30 тонн для средних моделей)? Есть ли ограничения по высоте/ширине?
  • Размеры площадки — при работе кран выдвигает выносные опоры (лапы), увеличивая ширину машины примерно на 2 метра с каждой стороны. Нужно свободное пространство.
  • Тип грунта — на мягком грунте потребуются подкладные плиты под опоры, чтобы кран не провалился.

Дополнительный совет: для работ на объектах с жёстким графиком стоит рассмотреть автокраны с системой телеметрии и контроля загрузки. Они повышают безопасность и позволяют отслеживать параметры работы удалённо.

Безопасность и обслуживание: что важно помнить?

Даже самый мощный автокран станет опасным, если пренебрегать правилами.

  • Регулярное ТО — каждые 500–1000 моточасов замена масла в гидросистеме, проверка тросов и тормозов.
  • Не превышайте грузоподъёмность — всегда сверяйтесь с таблицей в кабине. Учитывайте динамические нагрузки (рывки).
  • Перед началом работы — проверьте устойчивость крана, исправность ограничителя грузоподъёмности и звуковой сигнализации.
  • Для оператора — обязательное обучение и аттестация. Управление автокраном требует удостоверения стропальщика-крановщика.

Заключение

Автомобильные краны — незаменимые помощники в строительстве, промышленности и логистике. Их ключевые преимущества: мобильность, скорость и широкий диапазон грузоподъёмности. При выборе модели обращайте внимание не только на тонны, но и на тип привода, вылет стрелы, условия площадки. Правильно подобранный автокран окупится быстро и прослужит годы.
Доступ ко всем запасным частям на
краны SANY Palfinger
Оставьте заявку с указанием интересующего вас товара и наши менеджеры сориентируют вас по наличию и стоимости в кротчайшие сроки или перейдите на главную страницу каталога для самостоятельного поиска
Ремонт и сервисное обслуживание кранов SANY Palfinger
Официальный сервисный центр, предоставляющий полный спектр услуг по ремонту и обслуживанию кранов Sany Palfinger.